4576 | Schöne Doppelhaushälfte in ruhiger Waldrandlage | OFFTERSHEIM
Lage
Die Immobilie befindet sich in der Hardtwaldsiedlung in Oftersheim – einer der gefragtesten Wohnlagen der Region. Die Umgebung ist geprägt von gewachsenen Strukturen, viel Grün und einer besonders ruhigen Atmosphäre ohne Durchgangsverkehr. Die direkte Nähe zum Hardtwald bietet ideale Möglichkeiten für Spaziergänge, sportliche Aktivitäten und Freizeitgestaltung im Grünen. Gleichzeitig profitieren Sie von einer ausgezeichneten Infrastruktur: Einkaufsmöglichkeiten, Apotheke, Allgemeinmediziner, Kindergarten, Grundschule, Gesamtschule sowie öffentliche Verkehrsmittel sind schnell erreichbar. Dank der guten Verkehrsanbindung sind auch die umliegenden Städte wie Schwetzingen, Walldorf, Heidelberg und Mannheim bequem erreichbar. Diese Immobilie verbindet naturnahes Wohnen mit urbaner Nähe und bietet damit eine seltene Gelegenheit in attraktiver Lage.
Objektbeschreibung
Ausstattung:
Gaszentralheizung (2012)
Kachelofen
Drei Tageslichtbäder
Gäste-WC
Einbauküche mit Miele-Spülmaschine, Miele-Herd und Liebherr-Kühlschrank Elektrische Rollläden im Erdgeschoss
Elektrische Markise an der Terrasse
Parkett- und Fliesenböden
Terrasse mit Nordost-Ausrichtung
Liebevoll angelegter Garten
Eigener Brunnen zur Gartenbewässerung
Garage mit elektrischem Tor
Vier Außenstellplätze
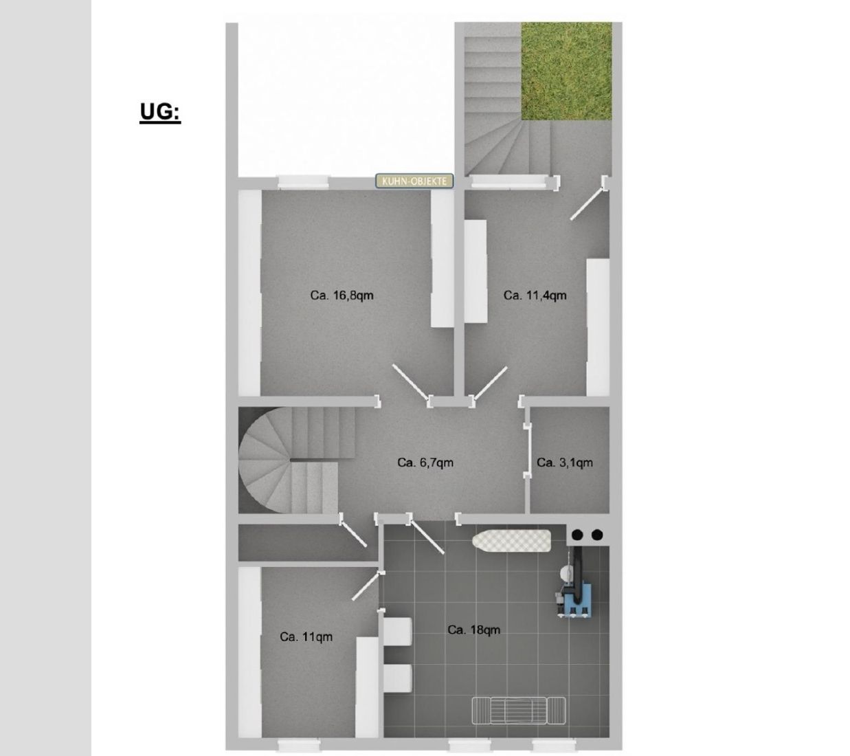
Drei Kellerräume
Energieeffizienzklasse B (68,10 kWh/m²a)
4576 | Schöne Doppelhaushälfte in ruhiger Waldrandlage | OFFTERSHEIM
Interesse an einem Objekt aus unserem Portfolio ?
Wir freuen uns über Ihre Nachricht!
Bitte nehmen Sie Kontakt zu uns via E-Mail auf. Wir arbeiten gerade an unserer Webseite.
Die Angaben zum Objekt wurden vom Verkäufer/Vermieter bekannt gegeben. Trotz aller Sorgfältigkeit können wir für die Richtigkeit und Vollständigkeit dieser Angaben keine Haftung übernehmen. Die Flächenangaben in den Grundrissen sind Angaben der jeweiligen Eigentümer. Für die Richtigkeit, Vollständigkeit und Aktualität können wir jedoch keine Gewähr übernehmen. Es gelten unsere AGBs.
Provision: Alle Angaben nach bestem Wissen. Irrtum und Zwischenverkauf vorbehalten. Der Käufer zahlt im Erfolgsfall an die Firma Kuhn-Objekte eine Käufer-Makler-provision in Höhe von 3,57 % inkl. gesetzlicher MwSt.. Die Provision errechnet sich aus dem beurkundeten Kaufpreis. Dieses Exposé ist eine Vorinformation, als Rechtsgrundlage gilt allein der notariell abgeschlossene Kaufvertrag.




















